













Affordable in Rolleston
From $677,000
Rolleston
Section size 318㎡
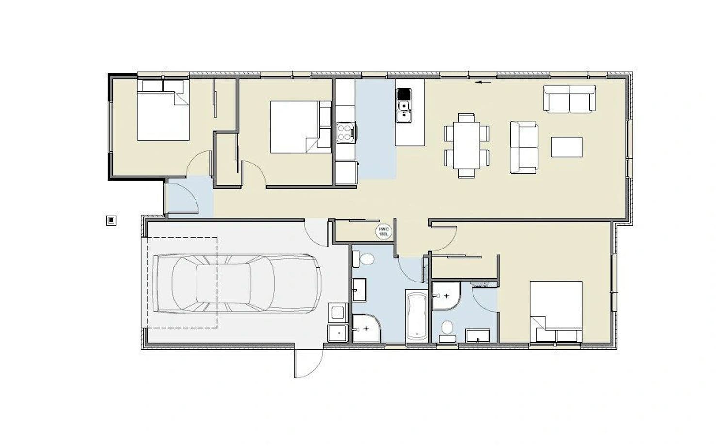
House size 130㎡
- Beds3
- Bathrooms2
- Receptions1
- Parking1
or email debbieryan@signature.co.nz
Visit Signature Homes Christchurch South
Enquire about this Package
Affordable in Rolleston
Rolleston
Your chance to secure a modern 130sqm three-bedroom, two bathroom home located in a new Subdivision in Rolleston, perfect for first home buyers or those seeking an investment opportunity.
A Signature Homes House & Land package brings together a piece of land and a home and a home to suit the site. We aim to make this process as easy for you as possible. Signature Homes is protected by the best building guarantees in New Zealand, giving you peace of mind along the way.
- 130m2 of living
- 318m2 section
- Single garage with internal access
- Great outdoor living - Perfectly sited for all-day sun and a low-maintenance site
- Three spacious bedrooms
The mixture of community amenities, parks, and homes will be connected by safe streets and pathways. Home to a diversity of residents, life here will be as relaxed or exciting as you want it to be. Rolleston has plenty of work and education opportunities, and Christchurch is 20 minutes down the road, keeping you well-connected.
A new primary school is set for completion in 2025, there is also multiple preschools and Rolleston College nearby, covering all your education needs!
Titles expected December 2025.
Package includes
- Signature Homes market-leading Building Guarantees
- Your choice of internal and external colours
- Fixed Price Guarantee
Floorplans: Affordable in Rolleston




Location
Rolleston


