















Relaxed Living in Rolleston
From $746,000
Rolleston
Section size 464㎡
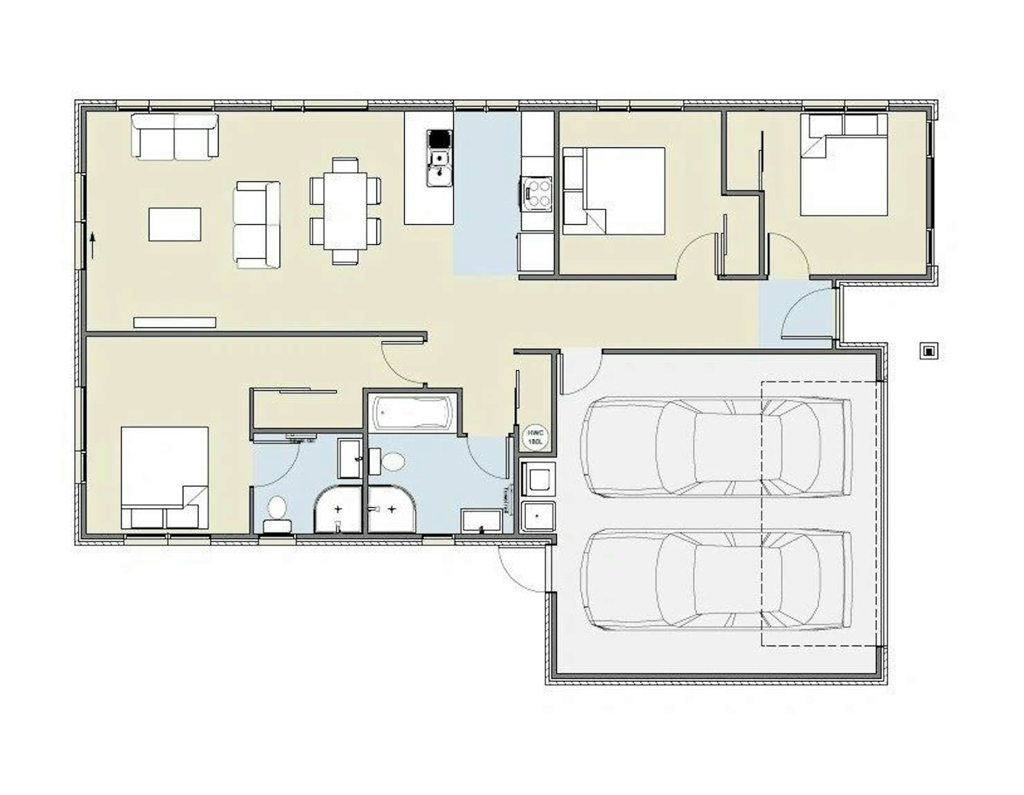
House size 142㎡
- Beds3
- Bathrooms2
- Receptions1
- Parking2
or email debbieryan@signature.co.nz
Visit Signature Homes Christchurch South
Enquire about this Package
Relaxed Living in Rolleston
Rolleston
Your chance to secure a modern 142sqm three-bedroom, two bathroom home located in Rolleston, perfect for first home buyers or those seeking an investment opportunity - all for less than $750k!
Signature features:
- 142m2 of living
- 464m2 section
- Double garage with internal access
- Great outdoor living
- Perfectly sited for all-day sun and a low-maintenance site
The mixture of community amenities, parks, and homes will be connected by safe streets and pathways. Home to a diversity of residents, life here will be as relaxed or exciting as you want it to be. Rolleston has plenty of work and education opportunities, and Christchurch is 20 minutes down the road, keeping you well-connected.
Titles expected December 2025.
Our Signature Service Promise:
We believe building your home should feel exciting, not stressful. That’s why when you choose Signature Homes, you’ll get:
- The best building guarantees in NZ - so you can build with total peace of mind.
- The best service in the business - we’re with you every step of the way.
- Fixed pricing - no surprises, just honesty.
- Over 40 years of experience - helping Kiwis create homes they love.
- Accurate build timelines - so you always know what’s ahead.
Package includes
- Signature Homes market-leading Building Guarantees
- Your choice of internal and external colours
- Fixed Price Guarantee
Floorplans: Relaxed Living in Rolleston




Location
Rolleston

