













Make Huapai Home
From $1,620,000
71 McIndoe Road, Huapai
Section size 634㎡
House size 200㎡
- Beds4
- Bathrooms2.5
- Receptions2
- Parking2
or email halliecameron@signature.co.nz
Visit Signature Homes West & North-West Auckland
Enquire about this Package
Make Huapai Home
71 McIndoe Road, Huapai
Taking something fabulous and making it even better…
Signature West and North-West Auckland is proud to present the next stage of the amazing Huapai subdivision. This stage boasts 60 sections ranging from 550m2 to 1265m2.
A considered development, featuring various site sizes, encouraging a range of architectural designs, producing a brilliant, varied living environment. Add to the mix fantastic access to village amenities, the gorgeous west coast coastline, easy commute to Westgate shopping facilities, the north shore and the inner city.
It is easy to understand the demand for these desirable sites. Arrange a site visit with our sales team, walk the land, understand the offering and discuss the packages available or launch into a customised design package.
House and Land Package Features:
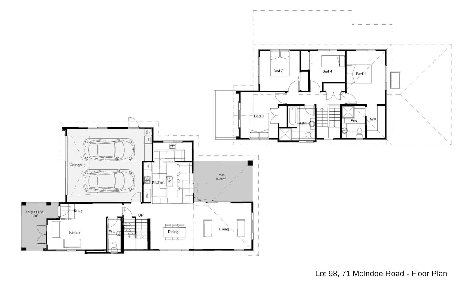
- Sited on Lot 98, 634m2
- Striking 200m2 two-storey design
- 4 family bedrooms
- Full Master suite with walk-in-robe
- Large designer kitchen with scullery
- Seamless flow to dining and main living areas
- Alfresco entertaining options
- Brilliant family bathroom
- Separate powder room downstairs
- Double car garaging or multi-use area
A magnificent family home, thoughtfully utilising a generous site to capitalise on outdoor living.
Let's discuss the details.
House & Land Package: HUA37, Lot 98
NOTE: Advertised package is priced from and subject to engineering & final design on site. The images advertised are an indication of what can be built on this site for the package price
Package includes
- Signature Homes market-leading Building Guarantees
- Your choice of internal and external colours
- Fixed Price Guarantee
Floorplans: Make Huapai Home




Location
71 McIndoe Road, Huapai

