



























Awesome Abode on St Aubyn Street
From $827,004
Lot 3, 452 St Aubyn Street, Moturoa
Section size 331㎡
House size 153㎡
- Beds3
- Bathrooms2
- Receptions1
- Parking2
or email stephaniewood@signature.co.nz
Visit Signature Homes Taranaki
Enquire about this Package
Awesome Abode on St Aubyn Street
Lot 3, 452 St Aubyn Street, Moturoa
Get yourself into a new home located in this near-central location.
Close to town and almost a stone's throw away from Ngamotu Beach and the Port. Only a few minutes' drive to Spotswood shops, Taranaki Base Hospital and schools. As well as being close walking distance to other shops in the area. So this package is great for a young family or professionals working near town or the hospital. Nice distant view of Paritutu and the Mountain.
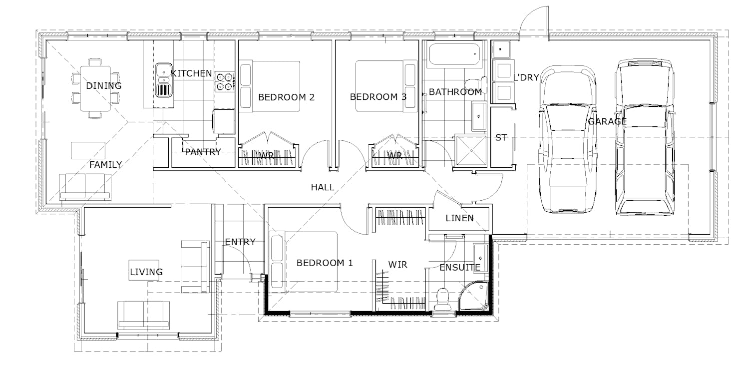
This House and Land Package offers a Hip Roof design or Gable Roof design with Brick and Weatherboard Exterior. We've maximised this rear, private site with this practical 3-bedroom home to capture all day sun, with a nice flow to an outdoor living space. The 153sqm modified Austral plan is well laid out, offering a lovely open plan kitchen with walk-in pantry, nook, connecting to an almost separate living area, the spacious master bedroom has its own ensuite and large walk-in robe and having a double garage provides room to house vehicles off the main road.
Signature Homes stands out for delivering certainty, especially with our fixed price guarantee. We offer the most comprehensive building guarantees in New Zealand. Choosing Signature Homes means choosing confidence in your building project. With this House and Land Package, we've taken care of the hard work, allowing us to offer a straightforward and secure process to get you into a new home, free from hidden expenses or unexpected surprises.
Contact Stephanie for an obligation-free chat, where she can help guide you through the process, discuss options available and the time-frames of building. Need help with finance? We can also assist you with this and liaising with the relevant parties.
Section is Subject to Title.
Neighbouring site at Lot 4, 454 St Aubyn Street also available. Check out the package for this section!
Package includes:
- Section size 331sqm ±
- 153sqm brick & weatherboard home
- 3 bedroom
- 1 living
- Kitchen with walk-in pantry
- Kitchen appliances
- Bathroom & ensuite
- Internal access double garage
- Heat Pump
- Floorcoverings - carpet and tiles
- Blockout roller blinds throughout (excluding bathrooms & garage) and Curtains to sliding doors
- Concrete driveway, pathways and patio
- All services included
- Building consent & full set of working drawings
- Signature Homes market-leading Building Guarantees
- Colour consultant - Your choice of internal and external colours
- Kitchen consult
- Electrical consult
- Fixed Price Guarantee
- Guaranteed Completion date
- 10 year Structural & Weathertightness Guarantee
- 2 year (non-structural) Maintenance Guarantee
Package includes
- Section size 331sqm ±
- 153sqm brick & weatherboard home
- 3 bedroom
- 1 living
- Kitchen with walk-in pantry
- Kitchen appliances
- Bathroom & ensuite
- Internal access double garage
- Heat Pump
- Floorcoverings - carpet and tiles
- Blockout roller blinds throughout (excluding bathrooms & garage) and Curtains to sliding doors
- Concrete driveway, pathways and patio
- All services included
- Building consent & full set of working drawings
- Signature Homes market-leading Building Guarantees
- Colour consultant - Your choice of internal and external colours
- Kitchen consult
- Fixed Price Guarantee
- Guaranteed Completion date
- 10 year Structural & Weathertightness Guarantee
- 2 year (non-structural) Maintenance Guarantee
Floorplans: Awesome Abode on St Aubyn Street




Location
Lot 3, 452 St Aubyn Street, Moturoa
